
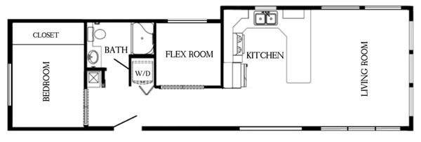
At Resort Homes Inc., every park model home is constructed in Canada and adheres to CSA-Z241 guidelines. Our park model homes are designed and crafted from the viewpoint of a custom home builder ensuring that we deliver some of the finest park model homes available in the industry.
When we design a park model home we ensure that all the details are accounted for. Things like window design and placement, kitchen designs, curb appeal, and functionality to just name a few. These details are important to create the perfect park model home.

.




.




.




.




.




.





We use cookies to analyze website traffic and optimize your website experience. By accepting our use of cookies, your data will be aggregated with all other user data.